首页
规划
品牌
互动
行业
关于
全部
新闻
地理
建筑
产业
文艺
营销
文案
昆山花桥绿地21城:15年前绿地第一代产业小镇
360DOC
领易咨询
2018-10-21 20:39
绿地花桥产业小镇“绿地21城”实景
进入2017年中期的地产时局,小镇已毋庸置疑成为中国各大地产集团的兵家必争之地。全国前五十强房产大鳄纷纷转战“小镇战场”,紧锣密鼓地发布各自覆盖全中国版图的“小镇战略”,至今热度不减。
绿地就是其中的一位。
其实,看似去年才火的“特色小镇”概念,早在十多年前,绿地就已涉足。距离上海市中心30多公里的昆山花桥镇,曾经是昆山发展较落后的镇。 2003年,绿地与花桥政府合作,在花桥打造了一个占地5200亩的绿地花桥产业小镇。当年的愿景是建设21世纪的人文新镇,打造宜居、宜养、宜学的生活及工作环境,吸引上海居民前去花桥安家置业。
我们现在回过头来看绿地花桥产业小镇的成绩:2016年为花桥GDP贡献37个亿,年纳税额近6个亿,创造就业岗位2万余个。2017年初,花桥常住人口为28.6万人,其中,本地人口6.2万人。绿地社区人口为7.4万人,占花桥人口四分之一,总入住率近90%。
花桥在这十年间由于人口的导入、基础配套的完备,也逐渐有了现代服务业为主导的清晰定位,成为长三角地区发展热土,这是一个良性循环的模式。
笔者近日亲自探访花桥,下文将以绿地花桥产业小镇为例,梳理分析绿地如何因地制宜,承接上海溢出效益,深耕14年打造一座产业小镇。
1
独具慧眼,十多年前就占领上海周边极佳的小镇布局区位
地段、地段还是地段。普通房地产项目如此,做小镇亦然。
花桥位于昆山市的最东端,素有“江苏东大门、上海后花园”之称,距离上海虹桥机场20公里,距离上海市中心30公里。如果在上海市中心以30公里为半径画一个圈,你会发现,奉贤不在其中、金山不在其中、松江、崇明也不在其中,而花桥却在其中。
同时,花桥整个地区被吴淞江贯穿始终。吴淞江,是苏沪之间的重要航运河道,进入上海境内就被叫做苏州河。因此,花桥也是典型的江南水乡,景色优美,空气清新。这些独特的地理位置和自然气候,是花桥可以成功开发成为特色小镇的必备基础。
2003年,已开启“全国化战略”大幕的绿地,将目光瞄向了上海的近邻花桥。地缘相近、人缘相亲是绿地选择花桥的主要原因之一,在此地开发能够相对较易地被上海居民所接受,同时也利于花桥经济和城市建设能力的提升,符合当地政府对发展的要求。正是在这种大背景下,花桥政府与绿地一拍即合,在这块热土上打造了一座国际化新城市——绿地21城。
2
自建配套,打造完整的小镇服务体系
花桥如今开发得如火如荼,成功承接了上海的人口和产业溢出效应,加上花桥政府的政策引导,许多企业选择花桥作为总部基地,鑫苑、万科、融创、新城、象屿等房企也纷纷进驻。但在十多年前,这片土地还都以种植水稻为主,其经济数据在整个昆山排名靠后而被视为“边角料”区域。绿地作为房企的开拓者,进入花桥开发,现在看来颇有勇气和眼光。
特色小镇一定要有房地产参与,在人口不足、产业动力不足的情况下,再好的规划,也没有办法实现。从绿地打造花桥产业小镇的做法来看,第一步就是打造一个宜居的社区,唤起大城市人们内心深处归隐田园,寄情草木的梦想,吸引大城市的人到花桥安居。人口到位了,后期配套、招商、产业导入自然源源而来,形成良性循环。
所以,绿地进入花桥做的第一件事就是修路,先后修建了春天大道、香榭丽大道、滨江大道、塞纳大道四条市政道路。政府也积极配合小镇建设,将原来双向双车道的东西干道拓宽,并以“绿地”命名,这就是现在全长7.8公里的“绿地大道”。这条道路打破了花桥与上海的交通壁垒,是建立小镇的基础。
7.8公里长的绿地大道
可以说,绿地花桥产业小镇,是绿地首个落地运营的特色小镇项目。
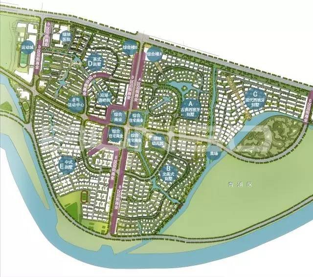
从下面的这张规划总图来看,它集产业、办公、生活、学校、医院等元素为一体,环境优美、生活便捷。整个小镇被吴淞江环绕,与青浦白鹤镇隔江对望,位于主干道绿地大道以南。
绿地花桥产业小镇总规划平面图
3
小镇聚焦两大客户群体:青年及养老人群
小镇开发的核心是寻找到未来可能居住的目标人群,他们有怎样的共性需求,又有怎样的消费特征,决定了整个小镇的定位方向。
而花桥产业小镇,因其所处位置原因而带来的高性价比的房价、优良的环境这两大特征,基本确定了其客户群将聚焦在初来上海奋斗及离开上海养老的两大特殊群体。
因此,绿地根据这样的人群特征,划分了两大小镇居住特色组团。总体来看,东部高速出口一出来的区域是以青年居住群体的启航社系列为主,以西的区域以宜居适老的孝贤坊为中心。两大区域,根据不同的居民结构,规划不同的生活设施,这种布局缩短了人们居住与就业、购物、休闲、娱乐等生活需要的空间距离。
在居住区内引入合理的商业配套和生活配套,对花桥地区人口导入发展产生了积极的影响。
我们先看“启航社”系列为主的区域。
这块区域离高速出口最近,当年客群定位就是70-80后这批有着住房刚需的年轻人。中心区域是乐和城商业中心,周边分布着“启航社”住宅产品,住宅以两房为主打。整个区域给笔者的感觉就是“快节奏,充满活力与生机”,所体现出来的就是车多,人多。工作日的饭点,乐和城与任何一个大城市的商业中心一样,人流如潮。
在这其中,沿着绿地大道规划的乐和城商业中心,可以看做是“小镇中心”。这是一个总建筑面积为53万平方米的分三期开发的复合型商业中心。
一期以易买得购物中心为主,辅以苏宁电器,中国银行的主题生活购物街,欧式商业步行街的设计风格,街区式外立面设计,营造出良好的商业氛围和休闲气息。其中,易买得购物中心连创华东地区销售额新高。
二期是具有水岸文化的生活休闲娱乐区,以麦当劳汽车餐厅为主,这也是华东地区首家麦当劳汽车餐厅,有效带动了区域内的商业人气,使整个商业区域凸显年轻活力。
三期以餐饮娱乐为主,引进了中影国际,也是昆山第一家拥有3D立体放映厅的超五星级全数字化影城。
启航社区域往西,是孝贤坊区域。
从名字上,就能看出,这一区域的定位是面向上海有养老需求的人群,这群人的特点是经济较为宽裕,在上海的自住房留给孩子,自己则有在上海周边环境优美的地区置房养老的愿望。
整块区域十字划分为ABCDE五大区域,以不同风格的别墅和小高层为主,区域间的十字边界规划了沿街商业,区域中心以综合商业为主,其余的配套如菜场、幼儿园、老年大学、医院、公园等四散分布在周边。
不同于“启航社”区域的“快”,一走进孝贤坊区域,你的脚步就不由自主地放慢下来,整块区域绿化率相当高,其中A区的容积率仅为0.4。鸟语花香,夏天池塘里荷叶莲莲,美丽的田园风光,正是大城市人心之所向。因此,这块区域的业主以有养老和度假需求的为主。
值得一提的是,在这个养老为主的社区里,所有的硬件都是按照养老所需的规格来设计的,6层楼的公寓也配有非标电梯,电梯内设有扶手、可视窗,进深增加到可方便担架进出。每个独立区域均设报警装置,并连接小区物业等等,这在2005年是相当罕见的标准。
除了生活配套系统基础上,绿地更是特别和上海老年大学合作建立了老年大学绿地分校,设有钢琴班、歌舞班、书法、摄影班和绘画班等各类特色班,丰富了周边老年人的业余生活。真正建造了让老人“老有所依,老有所学,老有所乐”的乡村美好居所。
同时,绿地为了让在花桥生活的年轻人老人更安心地安家,在十多年里,不断完善商业配套、公共机构以及开放空间,满足了居民全方位的生活需求。
教育
引进中福会一起合办了中福会绿地幼儿园,满足了对高质量有需求的客群,同时,也为当地政府无偿投资建造了公立的昆山花桥绿地幼儿园、绿地小学,解决了当地片区的就学问题。
医疗
与东方肝胆医院、中国肝病研究中心、吴孟超基金会联合投资了昆山东方绿地医院,整个院区分为门诊区、住院区。现一期门诊区9000平方米已建设完毕移交院方,于2013年投入使用。是昆山唯一一个三级医院。
运动
绿地美格菲运动城与香港著名健身运动品牌美格菲合作,打造成为华东地区最大规模的综合性运动城。室内以及室外的体育休闲设施,包括游泳池、健身房、篮球场以及足球场等等。
便民中心
在运动城二楼开辟当地政府的接待窗口,主要功能有三个中心:行政审批中心、行政服务中心和便民服务中心,为政府和市民提供了一个统一办理服务的场所。
业主班车
为了便利社区居民出行,绿地于2004年开通首条跨省的社区班车,直达上海中山公园。虽然班车的运营是公司长期补贴的,但是小区班车的开通,大大缩短了花桥和上海市中心的地理位置,吸引了大批上海市民前往花桥居住。
解决好特色小镇原住民和新住民住房问题是特色小镇的应有之义。绿地为当地6个村的居民建造了42万平方米的配套动迁房“花溪畔居”,按照上海标准结合花桥当地农民需求,为花桥安置动迁农民提供住房。
4
将现代服务业装入小镇,形成小镇新的引力磁极
特色小镇首先是功能小而全的微型城市,其次是鲜明的地域特色和产业的建立。随着人口导入越来越多,首条跨省地铁上海轨交11号线在花桥设站,规划中连接苏州、昆山、上海三地的昆山S1地铁也计划与上海地铁11号线花桥站接通。
上海《2016-2040城市总体规划》中指出:要确定“上海大都市圈”的范围,近沪地区将“一体化发展”。其中有苏州(昆山),这意味着,未来将形成“上海大都市圈”和90分钟交通出行圈,突出“同城效应”。
花桥在地理上有环上海的独特优势,依托大上海,吸引各类优质项目纷纷投入花桥,提升了花桥的产业水平,促使产生了“虹吸效应”。使花桥定位为“融入上海,面向世界,服务江苏”,形成了以江苏地区区域总部基地,金融服务外包基地,物流基地三大产业为主的多项优质产业基地。
其中江苏地区区域总部基地部分就在绿地21城内,总建筑面积为13万平方米。两座24层的双子塔楼为精装修办公楼,边上辅以7栋花园式办公楼。办公楼建筑面积为10万平方米。目前双子塔楼主要进驻公司有:昆山花桥商务城电子信息系统服务有限公司、江苏红果科技有限公司、江苏云翰股份有限公司、招商信诺江苏总部、苏州健微工业技术研发有限公司、昆山玳权精细化工研发有限公司、世庭酒店等。区域周边公司就业人数在10000多人。
在大城市土地资源日渐稀缺的背景下,各大房企涉足小镇开发向多业态拓展,寻找新的增长点。我们从绿地花桥产业小镇来看,特色小镇的开发建设是一个长期的过程,从土地开发、市政配套建设、招商引资、产业发展到商业运营,是一个不断滚动的循环,至少需要10年时间。
当前,中国由于区域收入差距大,低收入地区人口向高收入地区流动的现象非常明显,这是物竞天择,无可厚非的事情,因此在城市圈内的特色小镇,要想主动吸引并承接高端产业和高端人群,需要有强大的反磁力功能。
由绿地花桥产业小镇的案例可以看到,随着中国大城市带的空间趋势愈发成熟,在一线核心城市周边发展产业新市镇是一个必然的历史过程。随着大量高质量人口往大城市及其周边的净流入,承接这股浪潮的产业小镇的发展可谓势如破竹。如今的绿地已经在环上海地区布局了昆山花桥、苏州吴江、宁波杭州湾新区三大小镇。
在中国做城市运营和房地产开发,第一重要的是战略思维,其次才是产品思维。不得不说,绿地对中国经济发展趋势的洞察,其所具备的眼界、格局和行业前瞻性,在中国各大地产集团里面,的确是最优秀的一个。
次阅读
上一篇:
小镇运营成功案例:阿那亚把情怀变现的5个步骤
下一篇:
蓝城首个“教育+颐养”品牌落地天使小镇
联系本埠
wechat
(请添加“
本埠小乡
”微信)
QQ
1625857622
TEL
0571-86584865
MORE
关注本埠
本埠城乡公众号
本埠城乡微信小程序
小镇通公众号
本埠城乡头条号
热门话题
hot
topics
阿那亚6年开发节奏:前期投入5亿打造精神地标及生活配套,每年生活配套收入2个亿,保持100%年增长,业主不断加入小镇配套运营,反过来带动阿那亚的运转,小镇服务变现,社群活动—固定
小镇运营成功案例:阿那亚把情怀变现的5个步骤
649
产业
MOKUMOKU是日本旅游农场的代表、乡村振兴领域一个世界性示范,是业界必读案例。这是本埠城乡通过小镇通公众号发布的第20篇小镇内参。
MOKUMOKU1:日本农业旅游代表
1045
产业
点状供地的特殊性导致此类项目设计方式与一般的地产开发存在很大的差异。而,莫干溪谷最大的特点在于结合点状供地的特点,并与农业、当地文化与自然的结合,形成非常有特点的新开发模
融创莫干溪谷:点状供地下规划分析与开发创新
607
产业
折算亩产值高达到36万人民币的日本农场MOKUMOKU,高亩产、高客单价、高营收,MOKUMOKU捕捉到了日本高速城市化过程中的反城市化消费需求,方法论成功,把握了分寸。
MOKUMOKU3:农场研学粘性创造
1057
产业
世界各地知名小镇目录、小镇形成历史及发展模式研究。
全球特色小镇内参
706
产业
6年前,作为国内较早从事文旅事业的从业者,我有幸参与拈花湾前期的顾问工作,亲眼见证了耿湾(拈花湾前身)从偏居一隅的太湖渔村到全国著名旅游目的地的蜕变过程。
一个文旅人的自白:拈花湾的成功之道
745
产业
《浙江省人民政府办公厅关于做好低丘缓坡开发利用推进生态“坡地村镇”建设的若干意见》(浙政办发〔2018 〕 64号)已于近期发布,以下简称《意见》,现解读如下:
浙江省坡地村镇建设政策解读:点状供地
700
产业
杭州上城区南宋皇城小镇位于南宋临安城遗址核心保护区,以南宋皇城遗址和清河坊4A级景区为核心,总规划面积3.1平方公里。2015年以来,小镇在入围浙江省特色小镇培育名单的吴山宋韵小镇建
杭州上城区南宋皇城小镇建设方案
477
产业
天使小镇因天使而来,为欢乐而生。天使小镇以凯蒂猫家园和国际童话村为主导,配套建设各类亲子、家庭主题游乐场所和主题酒店,促进旅游产业与信息、文化创意、商业等产业的高度融合,
特色小镇规划设计案例:安吉天使小镇
471
产业
乡村振兴领域的理论、政策与实务,全球范围内乡村建设的成功案例。
乡村振兴研究
705
产业
轻井泽的成名缘于60年前平成天皇与未来妻子美智子的偶遇,但它聚落形成的原始动因是高山避暑,星野集团、王子集团两大轻井泽的开发主体贡献了大部份产业,其中各种等级的温泉度假村是
重新解读轻井泽,发现小镇的世界规律
720
产业
在茶道从一种以社交为中心的风雅游戏、以美术鉴赏为中心的单纯的生活艺术,升华至茶禅一味的“美的宗教”的过程中,墨迹起了决定性的作用。《独乐园图卷》原作收藏于美国克利夫兰博物
读画喝茶,多少风雅已不在?
1390
产业
特色小镇理论研究与实务精选,理想小镇实践的最新成果。
中国小镇
399
产业
蓝润天使学校是天使小镇作为教育小镇的重点配套资源,由绿城集团、银润控股集团和蓝城集团共同斥资10亿元倾情打造,十六年一贯制的非营利性学校
安吉蓝润天使学校办学理念与特色
1013
产业
乡村旅游作为乡村振兴的核心产业成为世界性的潮流,特色小镇和田园综合体应运而生。融创东南区域首个乡村文旅项目莫干溪谷的确是一个具有创新意义的精品项目。
文旅让莫干溪谷更加美好
987
产业
人类史上横跨五千年,五个人跨时空协同作业,造就世界一奇物:“茶”。这是一段神奇往事。心有所愿,必有所行动,心生奇迹的创立是大江大河的一滴水花、苍翠群山的一小垄江湖...
五个人的茶叶极简史
1382
产业
生态“坡地村镇”建设是立足浙江资源禀赋进行的一项有益探索,旨在统筹保护耕地、保护生态、保障发展,为发展生态经济、促进农旅融合、助力乡村振兴提供实践样本。
浙江省坡地村镇政策与点状供地操作方法
1017
产业
MOKUMOKU是农业的教课书,也藏着不少商业化农村的攻略,重新编织农村的商业路径,也是乡村振兴的实践路径。本埠城乡日本旅游农场案例研究。
MOKUMOKU2:农场消费场景建设
1046
产业
裸心品牌创始人、来自南非的高天成(GrantHorsfield)和妻子叶凯欣,从浙江德清县莫干山改造农民房起步,九年间建成一个民宿和一个度假村项目,并有五个度假村项目在建造过程中。
裸心谷创始人高天成:我比中国人更懂得中国人
609
产业
3月6日上午,安南小镇合作协议签约仪式在南昌签约,这标志着安南小镇项目建设在我县正式启动。县委书记李松殿、县长彭开先...出席签约仪式。
绿地南昌安南小镇开始进入正式建设期
520
产业
南昌大学第一附属医院靖安医院,落户靖安绿地明镜湾旁,绿地明镜湾再添重磅配套!靖安县政府举力推动项目落地、建设,促进靖安“生态+大健康“产业蓬勃发展。
南昌大学第一附属医院靖安医院落户绿地明镜湾旁
1200
产业
11日,广州市发布了《中共广州市委广州市人民政府关于推进乡村振兴战略的实施意见》等文件,明确了广州市的乡村振兴,要走出一条具有广州特色的超大城市乡村振兴之路
广州市委市政府推进乡村振兴战略实施意见全文
930
产业
史上最全的田园综合体案例解读:田园东方的成功,是知行并进的过程,也是将新田园主义总纲一以贯之的成果。在“乡村振兴”之路上,开拓者田园东方用自己的方式,成功练成了一部小镇版
田园东方:新田园主义实践|田园综合体案例1
725
产业
上饶国际医疗旅游先行区(上饶国家中医药健康旅游示范区)规划出炉。先行区突出医的特色、体现健康主题、呈现旅游要素,重点围绕中医和西医两大板块,体现“医、养、美、产、学、研”
上饶国际医疗旅游先行区规划发布
1033
产业
作为南昌高起点规划、高标准建设的五大重点功能片区之一的中国(南昌)现代职教城,政府领导便多次调研中国(现代)职教城,全面发力,推动职教城项目建设,提速提质提效促职教城高效
安南小镇:职教新城加速崛起,擘动区域价值腾飞!
1424
产业
2013-2019年中共中央、国务院、发改委、工信部、民政部等十部委权威部门下发关于我国大健康产业政策文件及主要内容,如下表:
国家及省市大健康产业政策总汇(2013-2019)
1010
产业
2018年3月中旬,融创摘得云智小镇一期7宗地,共计约515.37亩,斥资2.01亿元。3月26日,融创云智小镇正式开工。
融创云智小镇摘地,巩义史上最大投资项目开工
628
产业
绿地安南小镇位于南昌安南小镇安义县南部,为西出梅岭第一镇。作为一个特色小镇项目,安南小镇延续当地赣江文化底蕴,融合加州的阳光印象,现代的建造技艺,呈现出的是复古浪漫,风情
解密绿地安南小镇:山水之间、产业之镇
744
产业
融创东南已联手日本休闲观光农园之父、日本六次产业化设计师、日本MOKUMOKU主题农场创始人木村修,合作引入MOKUMOKU基于农场实现三产循环联动的生态商业模式,共同打造融创东南的“乡村版
德清莫干溪谷引入MOKUMOKU农场
948
产业
在首届菌草技术国际研讨会上,林占熺正式为菌草确定英文名“Juncao”。有人担心外国人不明此为何物,但林占熺解释说,“我就是想让世界知道,这是中国人的一个发明。
巨菌草,中国献给世界的礼物,神草之父林占熺获国际
1441
产业
融创首个乡村文旅主题乐园——融创欢喜欢喜乐园新品正式发布,山坡上·萌宠乐园、后山里·木乐园、欢喜·小小部落和远野莫干书舍四款新品同时亮相。
欢喜欢喜乐园在融创莫干溪谷发布
949
产业
欢喜欢喜,一座建造在4300亩山谷里的乐园,位于浙江德清的莫干溪谷度假村。乐园设计灵感源自日本MOKUMOKU农场。百亩微风稻田和依山而建的中式建筑,让人看见中国乡村的美;从北海道漂洋过
欢喜欢喜乐园 | 文化、艺术、研学、露营……打开430
1579
产业
正是在这种大背景下,花桥政府与绿地一拍即合,在这块热土上打造了一座国际化新城市——绿地21城——绿地花桥产业小镇。
昆山花桥绿地21城:15年前绿地第一代产业小镇
661
产业
2月18日下午,市委书记马承祖带领率市巡查组,深入白眉茶谷小镇,对景区2018年的建设发展成果进行巡查。
上饶市委书记马承祖等巡查白眉茶谷小镇
768
产业
2018年9月14日,天使小镇教育+颐养品牌发布会在安吉隆重举行,宋卫平先生探索十余年的学院式颐养2.0、幼儿园到高中15年一贯制的蓝润天使学校以及退休生活的桃花源“陌上花开”颐乐学院公
蓝城首个“教育+颐养”品牌落地天使小镇
692
产业
做小镇就是做生活,小镇是个壳子,它有很多空间和美丽,除了建筑、环境、配套和一般性的服务,我们还要把生活的内容加进去,即科学生活、文化生活、艺术生活
宋卫平:小镇主体是科学、文化与艺术生活
480
产业
陈向宏在混沌大学首次公开授课,为我们讲述了他是如何将自己家乡乌镇,从一个破烂小镇打造成世界级观光小镇的,值得一看。
陈向宏:乌镇怎样从破烂水乡转型世界文旅小镇
524
产业
2021年5月17日,中国(南昌)现代职教城管理委员会与绿地安南小镇正式签约入驻。此次签约,必将有力推动中国(南昌)现代职教城加速建设,为南昌职业教育“产城融合”按下加速键。
中国(南昌)现代职教城入驻安南小镇,建设按下加速
1418
产业
5月12日,安吉县2020年秋季招生公告发布,安吉不少关注教育的热心人士已经发现报名范围内新增了一所全新的安吉蓝润天使学校(筹)。
天使小镇K12天使学校今年9月即将开学
1014
产业
绿地安南小镇项目于2018年7月正式启动,分二期开发建设,其中一期以奥特莱斯名品购物为核心,携拾里香弄旅游轴、田园风情生活轴、小镇田园风光轴、健康休闲运动轴,最终形成一核四轴六
绿地安南小镇开工,建设南昌拾里香弄
620
产业
作为融创东南区域文旅小镇开山之作,上周末,融创·莫干溪谷农耕博物园大境开园,再一次验证了文旅小镇的魅力,唤醒都市人对田园生活的美好向往。
农耕博物园开园,融创文旅小镇首作的田园梦
610
产业
2021年10月13日上午,布局于顺庆区山水田园西线的“桃李春风”田园综合体项目正式开工,“一亩地、一座院、三分田”的田园生活将不再是梦想。
蓝城南充桃李春风田园综合体项目正式开工建设
1467
产业
为有效缓解土地供需紧张矛盾,进一步落实乡村振兴战略,实现经济、社会、生态效益多赢目标,浙江省人民政府办公厅发布关于做好低丘缓坡开发利用推进生态“坡地村镇”建设的若干意见
点状供地的政策依据,坡地村镇推动乡村振兴
699
产业
荷兰是个人口稠密的小国,每平方英里有1300多名居民。为此有人认为,要想发展大规模农业,荷兰几乎需要将所有资源都投入其中。然而,荷兰已经成为仅次于美国的全球第二大食品出口国,
全球第二大食品出口国荷兰的现代农业之路
1260
产业
田园综合体的建设,要深度挖掘乡村特色资源,以乡村旅游资源与土地为基础,以乡村旅游休闲为脉络,以休闲商业为配套,以乡村休闲地产为核心,以高品质服务为保障,进行综合开发。
田园综合体客户定位与策划规划思路
645
产业
湖州吴兴美妆小镇是以美妆产业为主导的特色小镇,主要引进化妆品生产及相关配套产业,将小镇打造成集产业、文化、旅游、社区“四位一体”及生产、生态、生活“三生融合”的美妆复合型
中国美妆小镇规划与重点特色产业项目
723
产业
22日上午,学校举行简短而隆重的校园启用仪式。学校学术总监、杭州师范大学原校长林正范,学校董事、著名时装设计师王新元,学校董事、银润蓝城天使小镇副总经理桂迪颖,蓝润天使学校
蓝润天使学校落成,天使小镇进入教育成长模式
1028
产业
融创莫干溪谷的当代村落哲学:于青山绿水间,在返璞归真中,找寻一种古朴、安逸的生活。莫干溪谷作为莫干山坐落地的江南村落式居所,无疑将古朴这一气质深入人心,在裸心之上,致力为
古朴与安逸,融创莫干溪谷的当代村落美学
608
产业
特色小镇是一个包容性的概念,可以包括各种不同模式的探索,有必要总结经验,相互交流,共同提高。一定要理性思考、因地制宜、政府引导、市场主体,迎接新一轮特色小镇建设的热潮。
特色小镇在浙江的起源和全国探索实践
870
产业
6月13日,融创(中国)控股有限公司与河南巩义市政府签署合作框架协议,计划投资450亿元围绕青龙山慈云寺景区进行深度开发,打造融创慈云小镇、融创产业新城。
融创与特色小镇:孙宏斌的小镇计划
614
产业
5月29日在海口开幕的2018琼台两岸民宿峰会以“乡村振兴,民宿开道”为主题,邀请了两岸民宿行业领军人物、民宿主人、投资人、设计师、乡村社区营造实践者,以及有志于“再造故乡”的社
民宿与乡村振兴的台湾经验
590
产业
田园综合体是在城乡一体化格局下,顺应农村供给侧结构改革、新型产业发展,结合农村产权制度改革,实现中国乡村现代化、新型城镇化、社会经济全面发展的一种可持续模式。
田园综合体模式分析
424
产业
近日,落户于浙江省安吉县昌硕街道三友社区的浙江离城酒店项目,完成13宗地不动产登记。这也标志着,安吉县在湖州市率先实现“坡地村镇”项目点状供地、集成发证。
浙江安吉点状供地坡地村镇项目实行集成办证
704
产业
城市就像太阳一样,代表着人类发展进步的光芒,承载着先进的文明科技以及丰富的生活内容。而农村呢,显而易见在商业设施、医疗设施、文化娱乐设施等等基础配套设施方面存在着大量不足
宋卫平:城市是太阳,农村是星星月亮
479
产业
为加快推进浙江文化产业发展,省第十四次党代会作出建设文化浙江、打造万亿级文化产业的战略部署。全省文化产业发展大会进一步明确提出要规划建设在全国具有引领示范意义的之江文化产
之江文化产业带建设规划发布,之江转塘为核心
600
产业
易家·班庄文旅小镇客厅施工迅捷并具备屋面上梁条件。8月3日,小镇客厅封顶庆典正式拉开帷幕,同科集团党委书记张名丽一行出席此次庆典并表示热烈的祝贺。
小镇客厅封顶,班庄文旅小镇建设加速
626
产业
在毗邻杭州的安吉天使小镇,也有这样一群“教育迁徙族”,我们找到了其中三位家长,听听他们给孩子找到理想的教育环境,同时还找到新的生活方式的故事。
18个家庭抱团而来,教育迁徙族激活天使小镇
1581
产业
与此形成对比的,是前几年红木市场的火爆,当时的红木厂商,以为自己的帝国可以“日不落”,压根儿没有预料到这种高端木材,有一天竟然会在市场受阻。
50万家具成本15万,暴利过后,红木家具行业可能面临死
1448
产业
“土地财政”这个词本身就体现了对房地产本质认识不清,以为卖地、买房就是房地产的全部。房地产最主要的功能不是直接融资而是创造信用。通过房地产市场交易给不动产估值,赋予其流动
赵燕菁:房地产危机的成因、应急之策与治本之道
1569
产业
四川省自然资源厅2日举行新闻发布会表示,四川推出“点状用地”新政策,对于服务于乡村振兴的项目用地,四川将根据规划用地性质和土地用途,灵活点状供应。
四川推出“点状用地”新政策助推乡村振兴
867
产业
随着中央文件对农业发展的重视,发展田园综合体的呼声不绝于耳。对于这个政策,农友们在寄与厚望的同时,又充满了疑惑?“田园综合体”是什么?搞什么?怎么搞?我们整理了国外发展田
田园综合体的全球经验
425
产业
9月7日,绿地控股集团产业协同战略品牌发布会(江西)暨绿地安南小镇启动盛典,在南昌绿地国际博览中心隆重举行。
绿地集团全产业联动,南昌安南小镇品牌发布
632
产业
根据总体布局与规划,拟将此打造为长株潭首席微度假+文娱情景商业+网红商业梦工厂项目,即以造梦为主题,传媒聚焦为核心,有机导入文化、娱乐、影视产业发展,全面提升株洲绿地21城的
绿地21城:芒果梦工厂筑梦启航
1250
产业
近日,广信区尊桥乡白眉茶谷小镇被评审为4A级景区,这是上饶乡村振兴又一亮点。该小镇建在尊桥乡周坞村,总规划用地面积6000余亩,毗邻320国道,紧靠三清山机场,省级“四好”公路皂周公
上饶白眉茶谷小镇被评审为4A级景区
1539
产业
广州市规划和自然资源局、市农业农村局近日印发了《贯彻落实市委市政府工作部署实施乡村振兴战略若干规划用地政策措施的通知》,闲置宅基地可以村集体经济组织为单位,通过拆旧建新发
广州颁布乡村振兴用地政策,宅基地可拆旧建新
929
产业
“多规合一”是新型城镇化背景下城乡总体规划发展的要求。结合上海市在城市规划编制中对“多规合一”的探索实践与经验,提出“多规合一”背景下城市总体规划的应对措施。
多规合一在上海城市规划中的实践与经验
711
产业
至2019年,绿地集团已建设了涵盖10个省份的30余个特色小镇。2018年建成的绿地安南小镇,就是其践行乡村振兴的代表项目之一。
从安南小镇看绿地怎样推进乡村振兴
978
产业
此前,本埠城乡小镇考察团队曾实地踏访日本最著名的避暑度假胜地——轻井泽,并先后撰文发布 日本轻井泽|全球特色小镇档案(1) 、 重新解读轻井泽,发现小镇的世界规律 、 轻井泽建筑:
国内首秀:虹夕诺雅姊妹酒店星野嘉助落户浙江天台
1387
产业
中国区域经济50人论坛成员、住建部原副部长、国务院参事仇保兴在一次内部论坛上谈了对特色小镇的发展形态演变,提出了判断一个特色小镇好还是差的10个标准,这对特色小镇至关重要。
仇保兴:特色小镇建设的10条黄金法则
612
产业
据新华社报道,近日,中共中央、国务院印发了《乡村振兴战略规划(2018-2022年)》,并发出通知,要求各地区各部门结合实际认真贯彻落实。
《乡村振兴战略规划2018-2022年》中共中央、国务院全
647
产业
六大部委联合下发《关于开展土地经营权入股发展农业产业化经营试点的指导意见》,旨在进一步在全国推广“土地入股”。
推广土地入股,丰富农村土地流转形式
993
产业
为落实《住房城乡建设部 国家发展改革委 财政部关于开展特色小镇培育工作的通知》(建村[2016]147号)精神,做好第二批全国特色小镇推荐工作,经商财政部,现将有关事项通知如下:
关于做好第二批全国特色小镇推荐工作的通知
430
产业
2021年2月25日16时,国家乡村振兴局牌子正式在北京市朝阳区太阳宫北街1号挂出。此前,《求是》杂志2021年第4期发表“中共国家乡村振兴局党组”的署名文章《人类减贫史上的伟大奇迹》,已
国家乡村振兴局成立,乡村建设行动全新开局
1374
产业
绿地21城与泽米商管,共同签约打造的特色商业街区绿饕汇,首批商家已入驻,满足全龄生活需求,全开放体验式街区,为绿地21城公民打造株洲乃至全国推崇的繁华体验。
湖南绿地21城梦工厂首批商家已入驻
1342
产业
今天,记者从巩义市委宣传部了解到,巩义市人民政府与融创(中国)控股有限公司的慈云小镇、云智小镇项目合作协议签约仪式在首都北京融创总部举行。
融创中国签约巩义市慈云小镇、云智小镇
627
产业
杭州市人民政府办公厅关于印发杭州市文化创意产业发展“十三五”规划的通知:大力发展文化创意产业,是繁荣社会主义文化、增强城市文化软实力的战略选择,是适应经济发展新常态、促进
杭州市文化创意产业发展“十三五”规划
403
产业
大学生创业无偿资助、留学生创业无偿资助、文化创意项目无偿资助、“青蓝计划”项目无偿资助、“雏鹰计划”项目无偿资助、物联网项目无偿资助、社区商贸便民便利无偿资助、科技计划项
2016-17年度杭州创业扶持政策(无偿资助)
404
产业
绿地21城梦工厂成功引进芒果优加产业集群和摩玛婚庆梦想城两大产业配套,同时促进云龙示范区未来的商业发展,将迎来新的契机,双品牌联合高度契合,拟打造长株潭微度假网红商业梦工厂
绿地牵手芒果优加、摩玛梦想城打造梦工厂
1197
产业
蓝城春风田野小镇依托所在地“湖北省全域土地综合整治试点项目区”约7万亩规划用地的优质生态基底,打造中国桃源意境的理想人居,小镇研究范围用地约2.4万亩,首期规划用地约4043亩,构
蓝城春风田野:官桥江南一相逢,胜却人间无数
1419
产业
特色小镇是指依赖某一特色产业和特色环境因素,打造的具有明确产业定位、文化内涵、旅游特征和一定社区功能的综合开发项目,是旅游景区、消费产业聚集区、新型城镇化发展区三区合一,
小镇圣经1:全面解读特色小镇(上)
405
产业
继城际空间站项目相继落子株洲、长沙、衡阳之后,湘潭成为世界500强企业绿地集团在湖南选择的第四个城市。
绿地湘潭湘江城际空间站摘地启动建设
981
产业
春回大地,茶叶飘香,眼下正是春茶采摘的好时节。上饶广播电视台主播们走进广信区尊桥乡白眉茶谷,打卡茶园美景,体验采摘魅力。
白眉茶谷带动广信区尊桥乡人均茶叶增收8000元
1562
产业
4月16日,国务院办公厅印发《关于推进养老服务发展的意见》,支持养老机构规模化连锁化发展。
养老机构规模化连锁化发展获国家政策支持
967
产业
农村集体土地不用经过国家征地环节,直接进入了市场,租赁住房、共享度假小院这类项目将获得快速审批通道!同时,土地成本将大幅降低,对平抑未来的租金价格、房价将产生重大影响。
农村集体土地无须经国家征地即可进入市场
697
产业
2019年岭南天地年客量逾2600万人次。2020年客流量数据尚未有官方公开数字,预计同样有所下降,但不可否认的是岭南天地作为佛山休闲商业的代表,同时也是这座城市旅游及文化
一条街区,何以年客流超过2600万人次?
1371
产业
华中绿地积极践行健康生活理念,经过将近数月的辛苦建设和紧张筹备,位于绿地国际健康城内的绿地健康九九(咸宁)中医医院于今日起正式对外开放营业。
绿地健康九九中医医院在梓山湖新城开业
1230
产业
过去两年内,他从国内各主要城市的地产商的头上抢走了1200万平方米的土地。他个人则多次放言,要从大腕们的头顶上跨过去,成为国内最大的房地产商。
孙宏斌:要从大腕们的头顶上跨过去
1043
产业
在疫情暴发之前,金丰800座的宴会厅里挤满了食客,享用着热气腾腾的叉烧包、排骨和虾饺。金丰的关闭令人痛心,即使在这座城市里,成千上万的餐馆、酒吧和夜总会在疫情期间永久关闭、超
唐人街传奇金丰酒楼闭店,你本以为它会一直存在
1396
产业
中华民族五千年文明史没有中断,根本原因就是生生不息的农业文明做基础和载体。在经济上,以农业立国的国家具有经济上自给自足的特点,专制社会的建立和农业文明相互咬合,彼此促进,
世界稻作起源地的文旅实践
1446
产业
国家特色小镇政策汇总,特色小镇规划编制:产业布局,统筹安排用地指标和空间布局,从县域层面统筹安排产业用地指标和空间布局,引导布局适度集聚,有条件发展产业的镇要预留发展空间和用地
小镇圣经3:全面解读特色小镇(下)
407
产业
不少特色小镇资金链断裂、商户逃离甚至沦为“空城”,至少有100个“文旅小镇”处于烂尾、倒闭状态。典型的案例是投资3.5亿的陕西白鹿原民俗文化村,开业后人气一路下滑,不得不拆除。
新华社:“特色小镇死亡名单”是一记警钟
1385
产业
围绕居家为基础、社区为依托、机构为补充、医养相结合的养老服务体系建设,合理规划养老服务设施空间布局,切实保障养老服务设施用地,促进养老服务发展,现提出以下指导意见。
养老服务用地将获优先规划和土地指标供给
968
产业
近日,农业农村部发布关于农产品中的农药残留及安全问答。农药残留是指农药使用后残存于生物体、农产品(或食品)及环境中的微量农药
农业农村部:农产品中的农药残留及安全问题
852
产业
实施乡村振兴战略,是党的十九大作出的重大决策部署,是决胜全面建成小康社会、全面建设社会主义现代化国家的重大历史任务,是新时代“三农”工作的总抓手。
中共中央国务院关于实施乡村振兴战略的意见
582
产业
7月30日,绿地控股在山东省投建的雪野湖健康旅游小镇项目全面启动建设。在四川区域,绿地此前也已经签约了多个特色小镇项目。
张玉良:绿地特色小镇要去地产化,打造有机生态体
625
产业
由隈研吾设计建造的丹麦新安徒生博物馆计划于2021年夏季开放,该项目重新诠释了丹麦作家安徒生的生活和工作故事,“将提供结合景观,建筑和现代展览设计的独特艺术体验”。
隈研吾新作:安徒生博物馆将于今夏隆重开馆
1380
产业
全球范围内,有9个国家垄断了53家千亿美元级的公司,中国占了13家,美国却拿下22家。中美之间的角逐,未来就看这四大领域:能源,汽车,ICT以及基建。这四大行业不仅决定了中国能否超车
全球千亿美元企业大梳理,中美差距缩小
508
产业
成都市行政区域内,按照城镇建设用地增加与农村建设用地减少相挂钩方式,通过实施土地整理取得集体建设用地指标后所进行的集体建设用地流转
成都市集体建设用地使用权流转管理办法
1042
产业
为深入贯彻习近平生态文明思想,进一步推动生态文明建设,促进乡村振兴战略实施,强化耕地保护和土地集约节约利用,合理配置农村土地资源要素,改善农村人居环境,经省政府同意,现就
四川省发文推进全域土地综合整治试点全文
1039
产业
今天,南昌市人民政府与上海地产龙头“绿地控股”、华为技术有限公司签约,探索“政府+市场”运作模式。一期项目预计投资500亿元,建设用地3平方公里,预计2022年基本建成。
绿地、华为联手打造南昌VR特色小镇
983
产业
当我们重新理解世界之后,终有一场新的相逢。4月18日,美好恰逢其时,绿地安南小镇景区发布暨商业产业签约盛典圆满举行,壮阔开启闪耀新篇章。
绿地安南小镇景区发布暨商业产业签约盛典圆满举行
1526
产业
特色小镇的运营:特色小镇的商业模式、产业项目开发、产业链整合开发、城镇建设开发、特色小镇的运营模式、特色小镇的投融资模式、特色小镇的PPP模式、特色小镇开发中的资源导入模式
小镇圣经2:全面解读特色小镇(中)
406
产业
按照河北省委、省政府《关于建设特色小镇的指导意见》和国家发展改革委等四部委《关于规范推进特色小镇和特色小城镇建设的若干意见》要求,为进一步理清思路、明确重点、优化布局、加
河北省特色小镇规划布局方案
817
产业
作为老绿城人,蒋安绰一直憧憬着小镇集团的未来。绿城小镇集团的发展更像是绿城发展史的一部缩影,只是这当中跌宕起伏的故事,没有比当事人更清楚的了。
蒋安绰:绿城小镇的理想与现实
1022
产业
2019年,绿地凭借超强的品牌优势、多产业并进的发展规模,以及对淮海经济区价值的深度洞察,落子淮海经济区之芯淮北市段园镇,为淮海再造一座世界人居大城。
淮海绿地21城打造3.0版绿地大城
991
产业
5月22日上午,浦江县2020年二季度重大项目集中开工仪式暨中国浦江万年上山文化村项目开工仪式在黄宅镇举行。这是我县坚持“以实绩论英雄、以项目论英雄、以服务论英雄”理念,扎实做好
中国浦江万年上山文化村项目开工仪式在黄宅镇举行
1433
产业
有重点、有特色发展是指导小城镇建设的重要原则,浙江省2015年全面启动特色小镇建设,截止目前共有79个特色小镇列入省级创建名单,51个特色小镇列入培训名单。
浙江省特色小镇规划建设工作实践
402
产业
近日,国务院办公厅印发《关于县域创新驱动发展的若干意见》(以下简称《意见》),部署推动县域创新驱动发展工作。
国务院关于县域创新驱动发展的若干意见
419
产业
中共中央、国务院关于深入推进农业供给侧结构性改革加快培育农业农村发展新动能的若干意见,经过多年不懈努力,我国农业农村发展不断迈上新台阶,已进入新的历史阶段。农业的主要矛盾
关于加快培育农业农村发展新动能的若干意见
423
产业
加快规划建设一批特色小镇是省委、省政府从推动全省经济转型升级和城乡统筹发展大局出发作出的一项重大决策。
浙江省政府加快特色小镇规划建设的指导意见
808
产业
改革开放以来第20个、新世纪以来第15个指导“三农”工作的中央一号文件4日由新华社受权发布。文件题为《中共中央 国务院关于实施乡村振兴战略的意见》,对实施乡村振兴战略进行了全面部
2018中央一号文件全面部署实施乡村振兴战略
583
产业
为贯彻党中央、国务院关于推进特色小镇、小城镇建设的精神,落实《国民经济和社会发展第十三个五年规划纲要》关于加快发展特色镇的要求,住房城乡建设部、国家发展改革委、财政部(以
国家关于开展特色小镇培育工作的通知
426
产业
21城,战略意义非凡。定制全域全时的理想成长体系,创造全新的教育模式,以领先的成长环境,填补0-12岁长株空白,开创百米触点法则,致力于“步行百米必有触点”, 让孩子的成长步步为
绿地21城梦工厂品牌发布会暨商家签约仪式
1249
产业
绿地控股集团江西区域管理总部正式成立,多产业协同助力江西跨越发展,9月7日,绿地控股集团产业协同战略品牌发布会(江西)暨绿地安南小镇启动盛典,在南昌绿地国际博览中心隆重举行
视频:绿地控股集团产业协同品牌发布暨绿地安南小镇
1534
产业