微设计 网络综合 2020-08-28 12:19

垂花门

大门构造

带八字影壁广亮大门

带花园四合院

带花园四合院1

单卷棚垂花门

二进带游廊平面

房间透视

广亮大门

脊

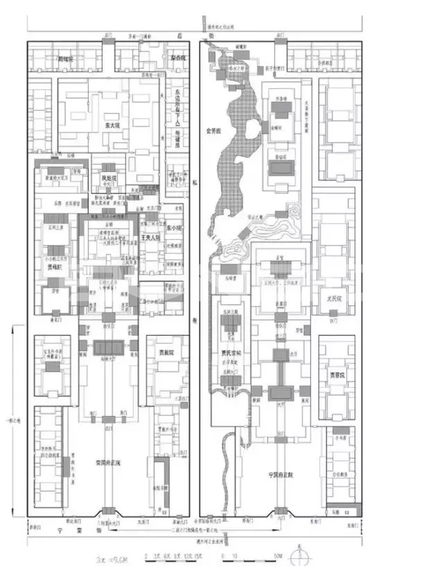
贾府建大观园前总平面图

贾府建大观园前总平面图02

建筑构架

金柱大门

蛮子门

门墩

如意门

如意门砖雕1

如意门砖雕2

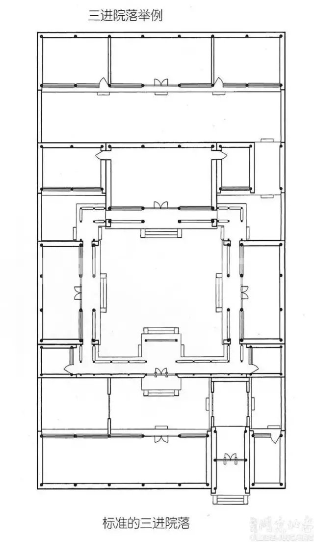
三进四合院

三进四合院平面图

山墙犀头

书房立面

书房平面

四进四合院

随墙门

堂屋家具陈设

堂屋家具陈设平面

堂屋家具陈设里面

五出五进

西洋门

巽门

一殿一卷垂花门

一进四合院和三合院平面图

一进四合院平面图

一主一次并列四合院

影壁花心
(完)
hot topics






